Главная
Акция
Личный кабинет
Корзина
Контакты
Каталог товаров
Акции
Двери и фурнитура
Входные двери
Двери МДФ/МДФ
Двери Металл/МДФ
Двери Металл/Металл
Межкомнатные двери
Глянцевые двери
Двери ПВХ
Двери ПВХ Премиум
Двери экошпон
Двери Эмаль
Ламинированные двери
Фурнитура дверная
Петли
Фурнитура для раздвижных дверей
Доводчики
Ригель
Евроцилиндры
Замки
Ручки дверные
Ограничители, шпингалеты
Фурнитура для финских дверей
Погонажные изделия
Погонаж Геона
Доборы
Коробка дверная
Наличники
Притворная планка
Уценка и распродажа
Двери Межкомнатные
Двери Стальные
Образцы
Дверная фурнитура
Дверной декор
Двери Погонаж
Стальные двери Самсон (Shelter Plus NEW)
Распродажа
Двери Doors-ola
Двери Луидор
Двери PortaUnica
Двери Мильяна
Двери Румакс
Кровельные материалы
Гибкая черепица
Черепица
ОСП, гвозди и пр.
Подкладочный ковер
Фартуки для гибкой черепицы
Ендовый ковер (Ендова)
Коньково-карнизная черепица
Клей и мастика
Распродажа
Рулонная черепица
Металлочерепица
Черепица
Ендова
Конек
Карниз (капельник)
Торец (фронтон)
Примыкание
Плоский лист
Снеговой барьер
Краска и крепеж
Фальцевая кровля
Самозащелкивающийся фальц
Двойной стояций фальц
Вент прогон и кляммеры
Карниз
Крепежная планка
Примыкание
Торец (фронтон)
Натуральная черепица
Цементно-песчаная черепица
Универсальные комплектующие
Профнастил
ST15
С8
С10
С20
С21
С44
НС35
Н60
Н75
МП18 (гофролист)
Комплектующие
Н-114
Композитная черепица
Черепица
Ендова
Конек
Карнизная планка
Торцевая планка
Примыкание
Плоский лист
Вентиляция
Гвозди и рем. комплект
Ондулин
Инструменты
Рулонная кровля
Комплектующие для кровли
Кровельная вентиляция
Вентилируемый конёк
Проходы кровельные Мастер Флеш
Аэраторы и дефлекторы
Вентиляционные выходы
Приточная вентиляция
Проходные элементы
Цокольные дефлекторы
PIIPPU проходные элементы
Вентиляционные выходы с электроприводом
Уплотнители проходов
Элементы безопасности кровли
Трубчатые снегозадержатели
Кровельные ограждения
Кровельная и фасадная лестница
Мостики и ступени
Снегостопор
Самоклеющиеся ленты
Уплотнители и герметики
Кровельные комплектующие
Доска и брусок
Выход на крышу
Распродажа
Водосточные системы
Пластиковые водосточные системы
Воронка водосборная
Выход из желоба
Желоб водосточный
Заглушка желоба
Клей и комплектующие
Колено нижнее (слив)
Колено трубы
Кронштейн желоба
Отвод дождевой воды
Соединитель желоба
Соединитель трубы
Тройник трубы
Труба водосточная
Угол желоба
Хомут трубы
Металлические водосточные системы
Воронка (выход из желоба)
Воронка водосборная
Желоб водосточный
Заглушка желоба
Колено трубы
Кронштейн желоба
Нижнее колено (слив)
Отвод дождевой воды
Соединитель желоба
Соединитель трубы
Тройник трубы
Труба водосточная
Угол желоба
Хомут трубы
Комплектующие
Водосборные каналы
Водоприемный лоток (канал)
Дождеприемник
Заглушка, крепеж
Решетка лотка (канала)
Распродажа
Фасадные материалы
Фиброцементные панели
Панели под камень
Панели под кирпич
Виниловый сайдинг и софит
Панель сайдинга
Софит
J - профиль
Наружный угол
Внутренний угол
Карниз (фаска)
Саморезы для сайдинга
H - профиль (соединительный)
Наличник и откос
Стартовый профиль
Финишный (завершающий) профиль
Окно для чердака
Альта-Декор
Система отделки углов
Фасадные панели (Цокольный сайдинг)
Фасадная панель
J - профиль/облицовочная планка
Внешний угол
Стартовый профиль
Наличник и откос
Металлический сайдинг и софит
Софит
Панель сайдинга
J - Профиль
Внешний угол
Внутренний угол
Карниз (фаска)
Околооконная планка
Отлив
Стартово-финишная планка
Стыковочная планка
Фиброцементный сайдинг
Комплектующие
Панель сайдинга
Фасадная плитка
Отливы
Козырьки и навесы
Распродажа
Заборы и ограждения
Ограждения
Комплектующие для ограждений
Модульные ограждения
Панельные (сварные) ограждения
Ворота и калитки
Металлический штакетник
Распродажа
Чердачные лестницы
Деревянные лестницы
Комплектующие для чердачных лестниц
Металлические лестницы
Изоляция, Утеплители
Гидро-, пароизоляция
Комплектующие
Гидроизоляция
Пароизоляция
Профилированные мембраны
Комплектующие
Профилированные мембраны
Теплоизоляция
Рулонная гидроизоляция
Звукоизоляция
Мансардные окна
Окна
Оклады
Изоляционные оклады
Москитные сетки
Рольставни и маркизеты
Шторы и жалюзи
Распродажа
Дымоходы
Дымоходы Isotor
Isotor д.16 мм.
Isotor д.20 мм.
Вентиляционные каналы и комплектующие UNI
Стальные дымоходы Permeter
Комплектующие Permeter
Система 130
Система 150
Система 200
Система 250
Система 300
Распродажа
Антисептики и огнебиозащита
Грунтовки, шпатлевки
Лаки, краски и декоративные составы
Модификатор для бетона
Составы для OSB
Герметики
Деревозащитные средства
Огнезащитные составы
Очистка и защита минеральных поверхностей
Искусственный камень
Декоративные элементы
Арочные элементы
Замковый камень
Накрывочные плиты
Наличники и карнизы
Откосы
Рустовый камень
Серия Special Edition
Серия Кирпичные коллекции
Серия Крупноформатный камень
Серия Плитка.Отделочный камень
Серия Скальные коллекции
Террасная доска
Комплектующие
Террасная доска
Ступени и комплектующие
Тротуарная плитка
Тротуарная плитка
Бордюры и водоотвод
Строительный крепеж
О нас
Главная
О компании
Производители
Оптовикам
Стать поставщиком
Вакансии
Наши бренды
Услуги
Статьи
Покупателям
Главная
Доставка
Оплата
Гарантии
Возврат товара
Сервисный центр
Партнерство
Главная
Стать дилером
Стать поставщиком
Рекламация
Поддержка
Главная
Вопросы - ответы
Как заказать
Как оплатить
Как получить
Подписка для дилеров
Оптовикам
О компании
Условия оплаты
Гарантия и возврат
Услуги
Доставка
Где купить
Онлайн оплата
Обратный звонок
8 (495) 788-77-07
Написать директору
zakaz@factum.ru
Все разделы
Все бренды
% Распродажа
0
0
Акции
Двери и фурнитура
Входные двери
Межкомнатные двери
Фурнитура дверная
Погонажные изделия
Уценка и распродажа
Распродажа
Кровельные материалы
Гибкая черепица
Металлочерепица
Фальцевая кровля
Натуральная черепица
Профнастил
Композитная черепица
Ондулин
Инструменты
Рулонная кровля
Комплектующие для кровли
Кровельная вентиляция
Элементы безопасности кровли
Самоклеющиеся ленты
Уплотнители и герметики
Кровельные комплектующие
Доска и брусок
Выход на крышу
Распродажа
Водосточные системы
Пластиковые водосточные системы
Металлические водосточные системы
Водосборные каналы
Распродажа
Фасадные материалы
Фиброцементные панели
Виниловый сайдинг и софит
Фасадные панели (Цокольный сайдинг)
Металлический сайдинг и софит
Фиброцементный сайдинг
Фасадная плитка
Отливы
Козырьки и навесы
Распродажа
Заборы и ограждения
Ограждения
Металлический штакетник
Распродажа
Чердачные лестницы
Деревянные лестницы
Комплектующие для чердачных лестниц
Металлические лестницы
Изоляция, Утеплители
Гидро-, пароизоляция
Профилированные мембраны
Теплоизоляция
Рулонная гидроизоляция
Звукоизоляция
Мансардные окна
Окна
Оклады
Изоляционные оклады
Москитные сетки
Рольставни и маркизеты
Шторы и жалюзи
Распродажа
Дымоходы
Дымоходы Isotor
Вентиляционные каналы и комплектующие UNI
Стальные дымоходы Permeter
Распродажа
Антисептики и огнебиозащита
Грунтовки, шпатлевки
Лаки, краски и декоративные составы
Модификатор для бетона
Составы для OSB
Герметики
Деревозащитные средства
Огнезащитные составы
Очистка и защита минеральных поверхностей
Искусственный камень
Декоративные элементы
Серия Special Edition
Серия Кирпичные коллекции
Серия Крупноформатный камень
Серия Плитка.Отделочный камень
Серия Скальные коллекции
Террасная доска
Комплектующие
Террасная доска
Ступени и комплектующие
Тротуарная плитка
Тротуарная плитка
Бордюры и водоотвод
Строительный крепеж
Водосточные системы
Кровельная вентиляция
Элементы безопасности кровли
Фасадные материалы
Элементы безопасности кровли
Кровельные комплектующие
Натуральная черепица
Цементно-песчаная черепица
Кровельные комплектующие
Гидроизоляция
Пароизоляция
Гибкая черепица
Водосточные системы
Фасадные панели
Виниловый сайдинг
Фасадная плитка
Фасадные материалы
Подкровельные пленки
Кровельные комплектующие
Водосточные системы ПВХ
Водосточные системы металл
Снегозадержатели
Мансардные окна
Чердачные лестницы
Подкровельные пленки
Металлочерепица
Профнастил
Фальцевая кровля
Элементы безопасности кровли
Водосточные системы
Металлический сайдинг
Ограждения
Сайдинг
Гибкая черепица
Гибкая черепица
Кровельная вентиляция
Композитная черепица
Композитная черепица
Теплоизоляция
Гибкая черепица
Дымоходы
Гибкая черепица
Гидроизоляция
Пароизоляция
Подкровельные пленки
Мансардные окна
Кровельная вентиляция
Фасадные панели
Виниловый сайдинг
Водосточные системы
Металлочерепица
Профнастил
Водосточные системы
Металлический сайдинг
Гибкая черепица
Фасадная плитка
Кровельные материалы
Подкровельные пленки
Виниловый софит
Теплоизоляция
Все бренды
Главная
Каталог
Фасадные материалы
Виниловый сайдинг
Наличники и откосы для сайдинга
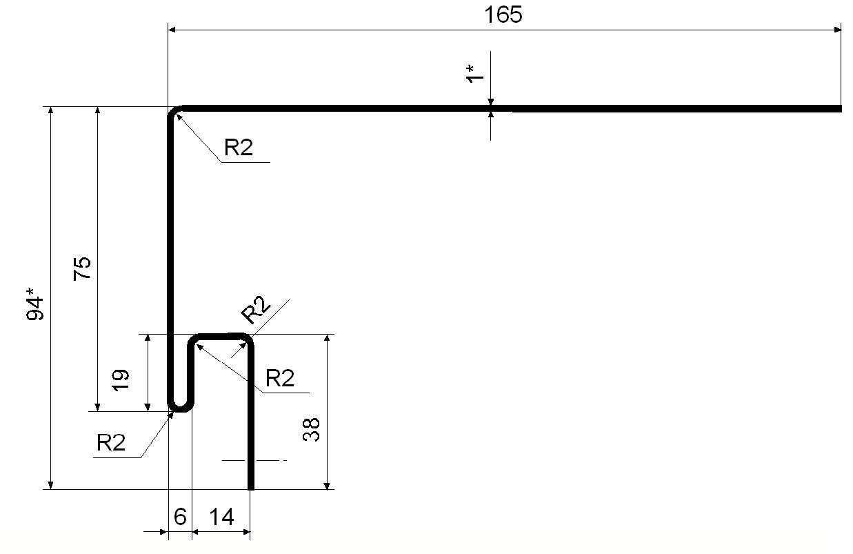
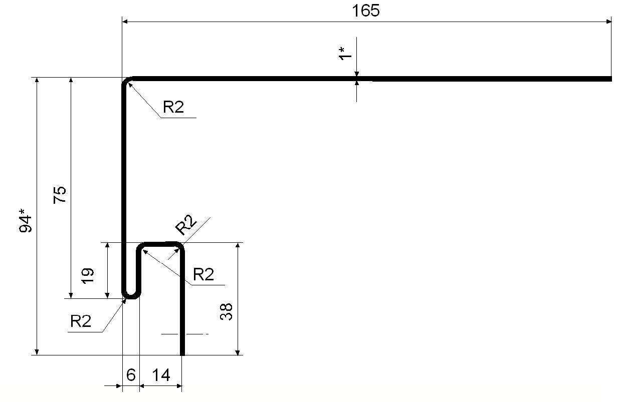
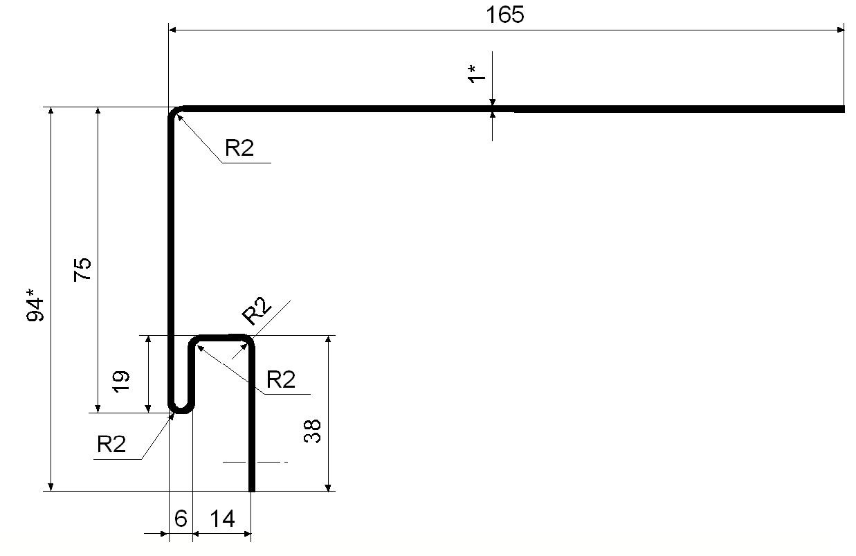
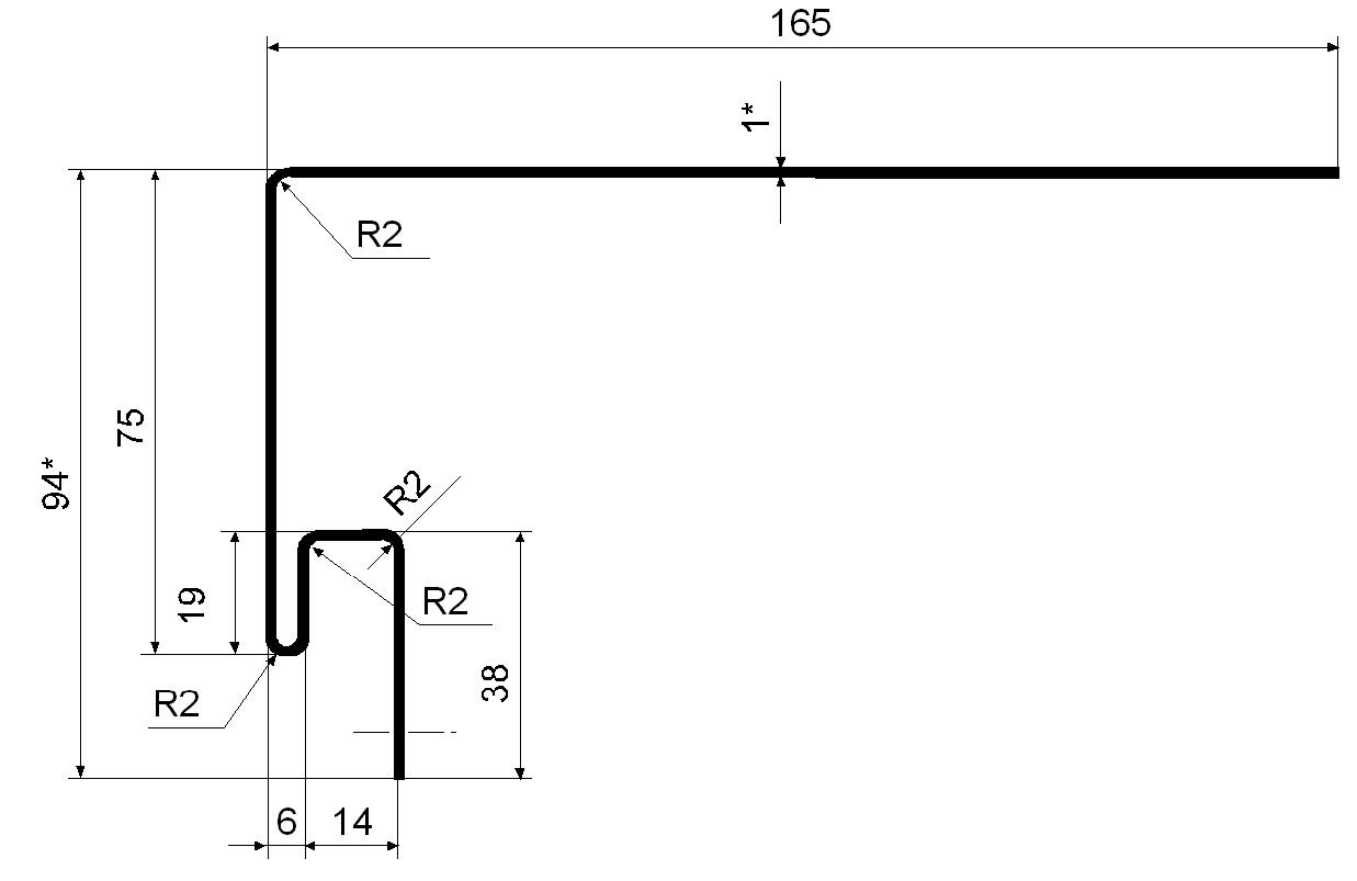
Grand Line: Околооконная планка, акриловая
Grand Line: Околооконная планка, акриловая
Код товара:
Внимание! Цвет, характеристики и комплектация товаров,
указанные на сайте, могут отличаться от реальных
Цвет:
2 152
руб.
шт
В корзину
Купить в 1 клик
Предложить цену
Доставка
Оплата
Возврат
Товаров:
1
шт
Итоговая цена:
2 152 руб.
Предложить цену
В корзину
Характеристики
Тип
Доборные элементы
Тип
Доборные элементы
Инструкции
Инструкция по горизонтальному монтажу винилового сайдинга и софита GL
PDF
Скачать
CHertezh-okolookonnaya
JPG
Скачать
Присоединяйтесь к
нам в соц. сетях
Последние новости
Акции и скидки
Мы используем cookie для удобства использования сайта. Я согласен с использованием cookies на условиях, указанных в
Политике обработки персональных данных
.
Принять